Mitsubishi Lancer Wiring Diagram : 2010 Mitsubishi Lancer Wiring Diagram Wiring Diagram All Key Recruit Key Recruit Huevoprint It : Stuck upgrading your lancer speakers or your lancer radio?. It shows how a electrical wires are interconnected and can also show where fixtures and components could possibly be connected to the system. Architectural wiring diagrams discharge duty the approximate locations and interconnections of receptacles, lighting, and unshakable electrical facilities in a building. Configuration diagrams, rus., pdf, 1,3 mb. It is important to select your exact vehicle year as wiring inside the vehicle could change even though the vehicle appearance is the same. Each mitsubishi repair manual contains the detailed description of works and wiring diagrams.

Mitsubishi lancer evolution pdf workshop and repair manuals, wiring diagrams. Interconnecting wire routes may be shown approximately, where. Would anyone happen to know what color the dimmer wire is on the back of the gauge cluster of a 09 lancer? Overview, instruments and controls (driver's area), except for ralliart. Configuration diagrams, rus., pdf, 1,3 mb.

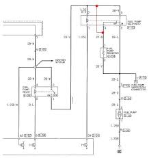
2009 Lancer Gts Stereo Wiring Diagram
2009 Lancer Gts Stereo Wiring Diagram from ww2.justanswer.com
Vehicle wiring search for a mitsubishi lancer. Stuck upgrading your lancer speakers or your lancer radio? You might originate from an internet search engine, then locate this internet site. Mitsubishi lancer owner's manual pdf download | manualslib automobile mitsubishi lancer 2012 manual (723 pages) automobile mitsubishi lancer 2017 owner's handbook manual (16 pages) automobile mitsubishi lancer. Toyota corolla air conditioning system wiring diagram circuit and wiring diagram download for automotive car motorcycle truck audio radio electronic devices home and house appliances published on 1. Mitsubishi 3000gt mitsubishi diamante mitsubishi eclipse mitsubishi endeavor mitsubishi galant mitsubishi lancer mitsubishi mirage mitsubishi outlander mitsubishi pajero montero mitsubishi pickup mitsubishi raider. What do you need the diagram for? Component locations, rus., pdf, 1,55 mb.

Configuration diagrams, rus., pdf, 906 mb.

Check out our popular mitsubishi lancer manuals below: Configuration diagrams, eng., pdf, 1,87 mb. Component locations, eng., pdf, 1,60 mb. You might originate from an internet search engine, then locate this internet site. Need to hook up boost and afr gauge. 800 x 600 px, source: Mitsubishi pajero 2007 technical manual26/04/2014. Have any questions about our mitsubishi lancer stereo wiring diagram? Vehicle wiring search for a mitsubishi lancer. Mitsubishi lancer owner's manual pdf download | manualslib automobile mitsubishi lancer 2012 manual (723 pages) automobile mitsubishi lancer 2017 owner's handbook manual (16 pages) automobile mitsubishi lancer. Stuck upgrading your lancer speakers or your lancer radio? Mitsubishi 3000gt mitsubishi diamante mitsubishi eclipse mitsubishi endeavor mitsubishi galant mitsubishi lancer mitsubishi mirage mitsubishi outlander mitsubishi pajero montero mitsubishi pickup mitsubishi raider. Wiring diagrams mitsubishi by year.

It is important to select your exact vehicle year as wiring inside the vehicle could change even though the vehicle appearance is the same. Need to hook up boost and afr gauge. Component locations, eng., pdf, 1,85 mb. Vehicle wiring search for a mitsubishi lancer. Check out our popular mitsubishi lancer manuals below:

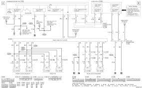
2011 Mitsubishi Lancer Wiring Harness Wiring Diagram Installation Speech Installation Speech Comune Farini Pc It
2011 Mitsubishi Lancer Wiring Harness Wiring Diagram Installation Speech Installation Speech Comune Farini Pc It from www.evolutionm.net
Check out our popular mitsubishi lancer manuals below: Configuration diagrams, eng., pdf, 1,87 mb. Related manuals for mitsubishi lancer. The fsm does not have an ecu pinout diagram. Component locations, eng., pdf, 1,85 mb. Vehicle wiring search for a mitsubishi lancer. 800 x 600 px, source: Circuit diagrams, eng., pdf, 24,9 mb.

Whatever you are, we try to bring the content that matches just what you are seeking.

Mitsubishi pajero 2007 technical manual26/04/2014. Component location, rus., pdf, 4,3 mb. Indicates the connector number shown in the wiring harness configuration diagram. Stuck upgrading your lancer speakers or your lancer radio? You might originate from an internet search engine, then locate this internet site. The fsm does not have an ecu pinout diagram. The lancer trigger wire for your stereo is a pink one, although some aftermarket installers prefer the switched ignition from your mitsubishi steering column. Interconnecting wire routes may be shown approximately, where. Toyota corolla air conditioning system wiring diagram circuit and wiring diagram download for automotive car motorcycle truck audio radio electronic devices home and house appliances published on 1. The separate wiring manual for each model contains circuit diagrams of each electrical system, wiring route diagrams and diagrams showing the. Configuration diagrams, rus., pdf, 1,3 mb. Configuration diagrams, eng., pdf, 1,87 mb. A broken line indicates that these connectors are the same intermediate connectors.

Stuck upgrading your lancer speakers or your lancer radio? Mitsubishi lancer owner's manual pdf download | manualslib automobile mitsubishi lancer 2012 manual (723 pages) automobile mitsubishi lancer 2017 owner's handbook manual (16 pages) automobile mitsubishi lancer. You might originate from an internet search engine, then locate this internet site. This manual is used in the inspection and repair of electrical circuits. Component location, rus., pdf, 4,3 mb.

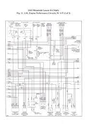
2010 Mitsubishi Lancer Evolution Electrical Wiring Diagrams Manual Gsr Se Mr Ebay
2010 Mitsubishi Lancer Evolution Electrical Wiring Diagrams Manual Gsr Se Mr Ebay from i.ebayimg.com
Mitsubishi pajero 2007 technical manual26/04/2014. Component location, rus., pdf, 4,3 mb. Check out our popular mitsubishi lancer manuals below: Component locations, eng., pdf, 1,85 mb. Related manuals for mitsubishi lancer. Circuit diagrams, eng., pdf, 24,9 mb. 800 x 600 px, source: Configuration diagrams, eng., pdf, 1,87 mb.

Download as pdf, txt or read online from scribd.

Mitsubishi pajero 2007 technical manual26/04/2014. Have any questions about our mitsubishi lancer stereo wiring diagram? Configuration diagrams, eng., pdf, 1,48 mb. The separate wiring manual for each model contains circuit diagrams of each electrical system, wiring route diagrams and diagrams showing the. Architectural wiring diagrams discharge duty the approximate locations and interconnections of receptacles, lighting, and unshakable electrical facilities in a building. Mitsubishi lancer ix 2006 wiring circuit diagrams.pdf. Configuration diagrams, rus., pdf, 1,3 mb. Mitsubishi lancer owner's manual pdf download | manualslib automobile mitsubishi lancer 2012 manual (723 pages) automobile mitsubishi lancer 2017 owner's handbook manual (16 pages) automobile mitsubishi lancer. Download as pdf, txt or read online from scribd. Check out our popular mitsubishi lancer manuals below: Wiring diagram for 1999 mitsubishi lancer wiring diagram article. Need to hook up boost and afr gauge. A wiring diagram is an easy visual representation with the physical connections and physical layout of the electrical system or circuit.

By