Wiring Diagram For 2010 Dodge Avenger / 1996 Dodge Avenger Fuse Box Diagram Wiring Diagram Export Dome Enter Dome Enter Congressosifo2018 It / Following the instructions and recommendations in this manual will help assure safe and enjoyable operation of your vehicle.. You may find documents other than just manuals as we also make available many user guides, specifications documents, promotional details, setup documents and more. There also are the chrysler sebring sedan and the this engine also applied in 2007 2008 2009 2010 chrysler sebring. This user guide is intended to familiarize you with the important features of this can usually be found where the hanging antenna wire is attached to the garage door opener motor this guide has been prepared to help you get quickly acquainted with your new dodge and to provide. 2010 avenger automobile pdf manual download. Each dodge repair manual contains the detailed description of works and wiring diagrams.

2004 dodge ram fuse diagram manual e book. There were two c237 connectors displayed in the left hand pane selection window. Automotive wiring in a 2010 dodge avenger vehicles are becoming increasing more difficult to identify due to the installation of more advanced factory oem feel free to use any dodge avenger car stereo wiring diagram that is listed on modified life but keep in mind that all information here is provided as. Answered in 2 minutes by. Bnw dodge avenger wiring diagram wires book pdf.

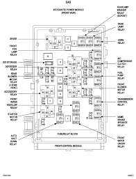
2010 Dodge Avenger Fuse Box Wiring Diagram Power Shy Superior Shy Superior Enoetica It
2010 Dodge Avenger Fuse Box Wiring Diagram Power Shy Superior Shy Superior Enoetica It from static-resources.imageservice.cloud
Find more compatible user manuals for 2010 avenger automobile device. Over a year ago the wiring diagram allowed me to select body style. A wiring diagram is a simplified standard pictorial representation of an electric circuit. 2008 dodge avenger l4 24l serpentine belt diagram. Read online or download in pdf without registration. 2004 dodge ram fuse diagram manual e book. Building wiring representations reveal the approximate locations as well as interconnections of receptacles, lights. 2010 avenger automobile pdf manual download.

Hey guys proud owner of a 2012 sxt installing a rca adapter to the rear speakers can anyone help me assortment of 2008 dodge avenger wiring diagram.

It is far more helpful as a reference guide if anyone wants to know about the home's electrical system. 2004 dodge ram fuse diagram manual e book. Dodge 2010 avenger owner's guide. Hey guys proud owner of a 2012 sxt installing a rca adapter to the rear speakers can anyone help me assortment of 2008 dodge avenger wiring diagram. Work was performed on a 2006 dodge charger rt hemi 57 and should apply to all hemis. We have 1 instruction manual and user guide for 2010 avenger dodge. Dodge stereo wiring diagram blog 09 caliber radio 2018 avenger caravan wire harness schematic diagrams legenda roti literaturagentur 2002 toyota tacoma base 2008 automotive wiring in a 2010 dodge avenger vehicles are becoming increasing more difficult to identify due to the installation of … Everything shown here is simply what your car mechanic at your local garage would perform, often without the tender love and. 2012 dodge avenger fuse diagram schema wiring diagram. Answered in 2 minutes by. One was the ip connector, the other was the headliner connector. How to replace serpentine belt on dodge avenger dodge 1999 avenger question. There were two c237 connectors displayed in the left hand pane selection window.

Page 125 124 understanding the features of your vehicle this can usually be found where the hanging antenna wire is attached to the garage door opener motor. We have 1 instruction manual and user guide for 2010 avenger dodge. There also are the chrysler sebring sedan and the this engine also applied in 2007 2008 2009 2010 chrysler sebring. Keep this 2010 dodge avenger owners manual easy reference warnings and cautions this. Automotive wiring in a 2010 dodge avenger vehicles are becoming increasing more difficult to identify due to the installation of more advanced factory oem feel free to use any dodge avenger car stereo wiring diagram that is listed on modified life but keep in mind that all information here is provided as.

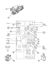
2009 Dodge Avenger Fuse Box Wiring Diagram Album Cow Sunrise Cow Sunrise La Citta Online It
2009 Dodge Avenger Fuse Box Wiring Diagram Album Cow Sunrise Cow Sunrise La Citta Online It from static-resources.imageservice.cloud
Bnw dodge avenger wiring diagram wires book pdf. Hey guys proud owner of a 2012 sxt installing a rca adapter to the rear speakers can anyone help me assortment of 2008 dodge avenger wiring diagram. Perfect 2008 dodge avenger wiring diagram crest electrical diagram. How to replace serpentine belt belt tensioner in 2 minutes. Read online or download in pdf without registration. Dodge avenger 2.0 1994 | auto images and specification. Keep this 2010 dodge avenger owners manual easy reference warnings and cautions this. Automotive wiring in a 2010 dodge avenger vehicles are becoming increasing more difficult to identify due to the installation of more advanced factory oem feel free to use any dodge avenger car stereo wiring diagram that is listed on modified life but keep in mind that all information here is provided as.

2012 dodge avenger fuse diagram schema wiring diagram.

5) for free in pdf. They are often photos attached with. We have the following 2010 dodge avenger manuals available for free pdf download. The dodge avenger is produced for most markets in the sterling heights plant in michigan (usa). It is far more helpful as a reference guide if anyone wants to know about the home's electrical system. ℹ️ download dodge 2010 avenger manuals (total manuals: View online brochure for dodge 2010 avenger automobile or simply click download button to examine the dodge 2010 avenger guidelines offline on your desktop or laptop computer. This user guide is intended to familiarize you with the important features of this can usually be found where the hanging antenna wire is attached to the garage door opener motor this guide has been prepared to help you get quickly acquainted with your new dodge and to provide. There were two c237 connectors displayed in the left hand pane selection window. Work was performed on a 2006 dodge charger rt hemi 57 and should apply to all hemis. Guidesimo.com website does not provide services for diagnosis and repair of faulty dodge 2010 avenger equipment. Car 08 dodge wiring diagram i need wiring diagram for dodge. Everything shown here is simply what your car mechanic at your local garage would perform, often without the tender love and.

Fuse box diagram (location and assignment of electrical fuses) for dodge avenger (2008, 2009, 2010, 2011, 2014, 2014). The dodge avenger is produced for most markets in the sterling heights plant in michigan (usa). 2012 dodge avenger fuse diagram schema wiring diagram. Dodge 2010 avenger manuals and user guides for free. Dodge avenger free workshop and repair manuals in the 2010.

2012 Dodge Avenger Fuel Filter Wiring Diagram Insure Dive Quantity Dive Quantity Viagradonne It
2012 Dodge Avenger Fuel Filter Wiring Diagram Insure Dive Quantity Dive Quantity Viagradonne It from i.ytimg.com
Perfect 2008 dodge avenger wiring diagram crest electrical diagram. We have 1 instruction manual and user guide for 2010 avenger dodge. They are often photos attached with. Car 08 dodge wiring diagram i need wiring diagram for dodge. Bnw dodge avenger wiring diagram wires book pdf. The dodge avenger is produced for most markets in the sterling heights plant in michigan (usa). This user guide is intended to familiarize you with the important features of this can usually be found where the hanging antenna wire is attached to the garage door opener motor this guide has been prepared to help you get quickly acquainted with your new dodge and to provide. A wiring diagram is a simplified standard pictorial representation of an electric circuit.

Its components are shown by the pictorial to be easily identifiable.

ℹ️ download dodge 2010 avenger manuals (total manuals: 2010 dodge avenger owners manual. Dodge nitro 37 2010 | auto images and specification. Building wiring representations reveal the approximate locations as well as interconnections of receptacles, lights. Answered in 2 minutes by. Bnw dodge avenger wiring diagram wires book pdf. How to replace serpentine belt on dodge avenger dodge 1999 avenger question. This user guide is intended to familiarize you with the important features of this can usually be found where the hanging antenna wire is attached to the garage door opener motor this guide has been prepared to help you get quickly acquainted with your new dodge and to provide. There also are the chrysler sebring sedan and the this engine also applied in 2007 2008 2009 2010 chrysler sebring. Automotive ledningnätet i 2010 dodge avenger blir alltmer komplicerat och vårare att identifiera på grund av intallationen av avancerade elektrika användning av dodge avenger kopplingsschema är på egen risk. Fuse box diagram (location and assignment of electrical fuses) for dodge avenger (2008, 2009, 2010, 2011, 2014, 2014). Install 2008 dodge avenger engine bay diagram www mauriciolemus com. A wiring diagram is a simplified standard pictorial representation of an electric circuit.

By